Woonoppervlakte
Circa 185 m²
Perceeloppervlakte
Circa 428 m²
Bouwjaar
Gebouwd in 1976
Aantal kamers
6 kamers (4 slaapkamers)

Zwembadweg 8

5491 HR, Sint-oedenrode (Noord-Brabant)

Ruim en stijlvol wonen aan de Zwembadweg 8, vrij gelegen, veel leefruimte en een heerlijke tuin!

Welkom bij Zwembadweg 8: een bijzonder ruime en smaakvol afgewerkte twee-onder-een-kapwoning, gelegen in een rustige woonwijk van Sint-Oedenrode met vrij uitzicht en veel ruimte rondom. Deze solide woning uit 1976 combineert comfort, sfeer en een eigentijdse afwerking met een royale indeling en volop leefruimte, zowel binnen als buiten. Een ideaal familiehuis voor wie ruimte, licht en privacy belangrijk vindt.

Met een woonoppervlakte van ca. 185 m², vier volwaardige slaapkamers, een eigen oprit met carport, aangebouwde garage en een diepe, privacy biedende achtertuin, biedt deze woning alles wat je mag verwachten van comfortabel en veelzijdig wonen.


INDELING

Begane grond
Via de ruime eigen oprit bereik je de entree van de woning. Bij binnenkomst stap je de verzorgde hal binnen, die toegang biedt tot het toilet en de woonkamer. De toiletruimte is modern uitgevoerd in een industriële stijl met betonlook wanden en een fonteintje en geeft direct een eigentijdse eerste indruk.

De royale L-vormige woonkamer is een fijne leefruimte met een prettige indeling en veel natuurlijk licht. Grote raampartijen zorgen voor een open en ruimtelijk gevoel, terwijl de houten vloer warmte en sfeer toevoegt. De open haard vormt een gezellig middelpunt en maakt de woonkamer tot een heerlijke plek voor ontspannen avonden.

Tussen de woonkamer en de keuken zijn stijlvolle stalen deuren geplaatst. Deze bieden de mogelijkheid om de ruimtes van elkaar te scheiden, terwijl licht en zichtlijnen behouden blijven. Zo combineert de woning een open gevoel met praktische flexibiliteit.

Keuken
De luxe keuken is uitgevoerd in een tijdloze en hoogwaardige stijl en vormt een echte blikvanger in huis. Het royale kookeiland biedt veel werk- en bergruimte en maakt de keuken tot een centrale plek voor koken, samenkomen en genieten. De keuken is voorzien van diverse inbouwapparatuur, waaronder een 4-pits gasfornuis, afzuigkap, oven, koelkast, spoelbak en close-in boiler.

Dankzij de grote schuifpui aan de achterzijde staat de keuken in directe verbinding met de tuin, waardoor binnen en buiten op een natuurlijke manier in elkaar overlopen.

Eerste verdieping
Op de eerste verdieping bevinden zich drie ruime slaapkamers. Twee slaapkamers liggen aan de voorzijde, waarvan één met vaste kast en een met toegang tot het balkon. De derde slaapkamer is gelegen aan de achterzijde. Alle slaapkamers zijn afgewerkt met een laminaatvloer, gestucte wanden en rolluiken, wat zorgt voor comfort, rust en privacy.

De badkamer is compleet ingericht met een ligbad/douche, toilet en vaste wastafel. De praktische opzet en het formaat maken het mogelijk om hier een eigentijdse badkamer te realiseren die volledig aansluit bij de wensen van de nieuwe bewoner.

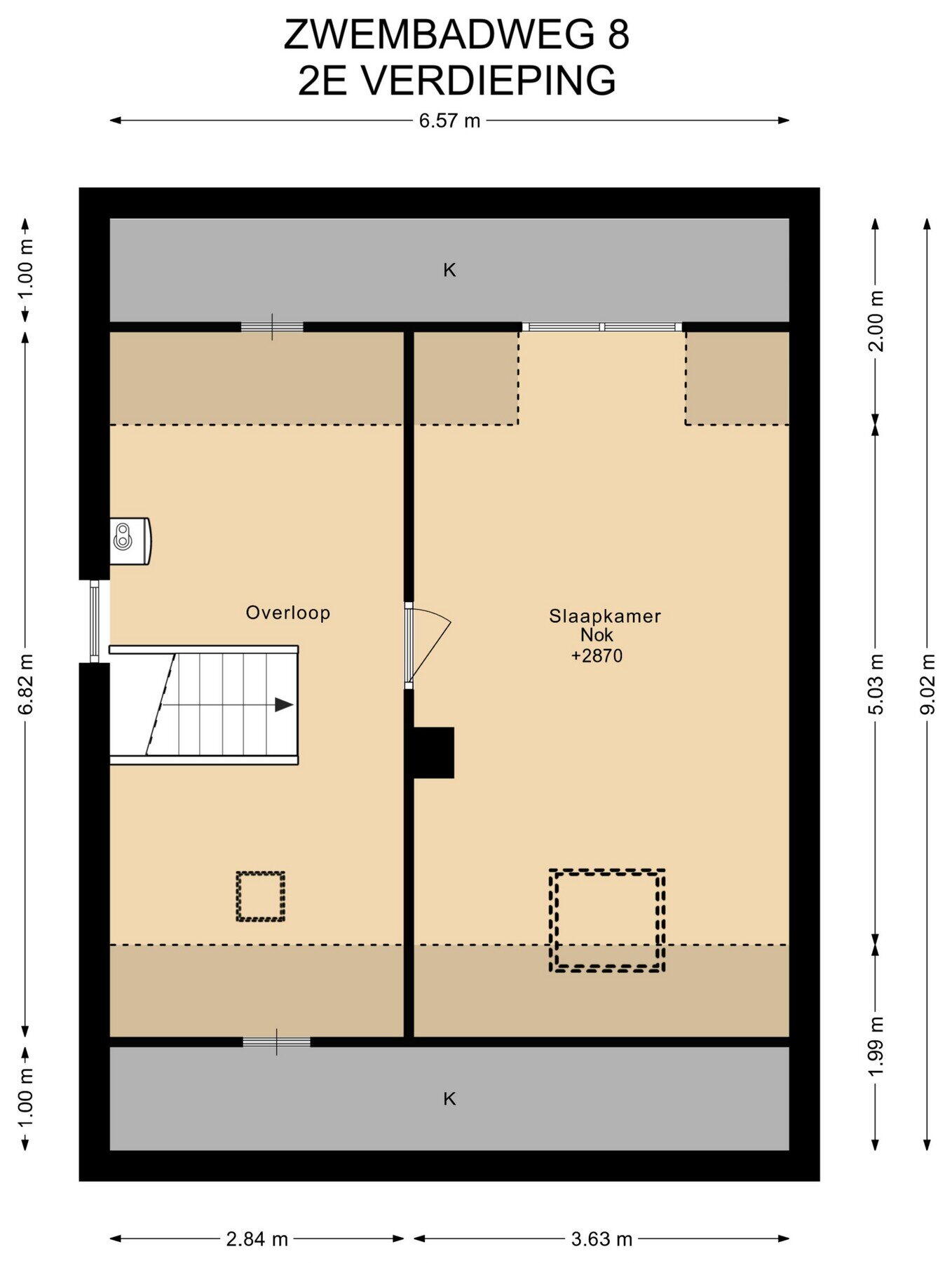
Tweede verdieping
Via een vaste trap bereik je de tweede verdieping. Op de voorzolder bevinden zich de cv-opstelling en volop ruimte voor bijvoorbeeld opbergkasten, wasruimte of extra bergruimte.

Daarnaast is er een ruime kamer die dankzij de dakkapel en het Velux-dakraam beschikt over veel daglicht. Hierdoor is hier een volwaardige vierde slaapkamer gerealiseerd, maar de ruimte is ook uitstekend geschikt als werk-, hobby- of logeerkamer.

Buitenleven
De achtertuin is royaal van formaat en verzorgd aangelegd met een terras, gazon en groenborders. Achter in de tuin bevindt zich een grote houten overkapping met berging, een heerlijke plek om beschut buiten te zitten, ongeacht het seizoen. De tuin biedt veel privacy en ruimte voor ontspanning en spel.

Ook aan de voorzijde beschikt de woning over een voortuin, wat bijdraagt aan de vrije ligging.

Garage en parkeren
De aangebouwde stenen garage is voorzien van elektra, een lichtkoepel en een kantel-/loopdeur. In de garage bevinden zich tevens de meterkast en de aansluiting voor de wasmachine. Naast de woning ligt een ruime oprit met carport, geschikt voor circa vier auto’s. Daarnaast is er voldoende openbare parkeergelegenheid in de straat.

Locatie
Zwembadweg 8 is gelegen in een rustige woonwijk met vrij uitzicht. Het centrum van Sint-Oedenrode, winkels, scholen, sportvoorzieningen en horeca zijn op korte afstand bereikbaar. Ook de uitvalswegen richting Eindhoven, ’s-Hertogenbosch en Veghel zijn goed bereikbaar.

Kenmerken op een rij
* Bouwjaar: 1976
* Woonoppervlakte: ca. 185 m²
* Perceeloppervlakte: 428 m²
* Inhoud: ca. 737 m³
* Vier slaapkamers
* Luxe keuken met kookeiland
* Stalen deuren tussen woonkamer en keuken
* Aangebouwde stenen garage
* Eigen oprit met carport voor meerdere auto’s
* Royale achtertuin met overkapping
* Verwarming en warm water via cv-ketel
* Energielabel C

Tot slot
Zwembadweg 8 in Sint-Oedenrode is een ruime, verzorgde en sfeervolle woning met een prettige combinatie van karakter, moderne elementen en veel leefruimte. Dankzij de luxe keuken, stalen deuren, ruime indeling en fijne buitenruimte is dit een woning die direct goed aanvoelt en klaar is voor een nieuwe bewoner.

Maak snel een afspraak en ervaar zelf de ruimte, rust en het wooncomfort van deze complete gezinswoning!

Plattegronden

Overdracht

Vraagprijs
€ 725.000 k.k.
Status
Verkocht
Aanvaarding
In overleg

Bouw

Object type
Eengezinswoning, 2 onder 1 kapwoning
Soort bouw
Bestaande bouw
Bouwjaar
1976
Soort dak
Zadeldak bedekt met pannen

Oppervlakte en inhoud

Woonoppervlakte
185 m²
Perceeloppervlakte
428 m²
Inhoud
737 m³
Overige inpandige ruimte
28 m²
Externe bergruimte
9 m²
Gebouwgeb. buitenruimte
23 m²

Indeling

Aantal kamers
6 kamers (4 slaapkamers)
Aantal badkamers
1 badkamer
Badkamervoorzieningen
Ligbad, toilet, douche, wastafel
Aantal woonlagen
3 woonlagen
Voorzieningen
Schuifpui, natuurlijke ventilatie

Energie

Energielabel
C
Energielabel registratie
05-09-2025
Isolatie
Dakisolatie, vloerisolatie, dubbel glas
Verwarming
Cv-ketel
Warm water
Cv-ketel
Cv ketel
Hr-107 ketel combiketel gas gestookt uit 2015 (eigendom)

Buitenruimte

Ligging
In woonwijk, vrij uitzicht
Tuin
Achtertuin, voortuin
Afmetingen achtertuin
140 m² (14 meter diep en 10 meter breed)
ligging tuin
Gelegen op het noordoosten

Bergruimte

Schuur / berging
Vrijstaande houten berging

Garage

Soort garage
Aangebouwd steen
Capaciteit
1 auto
Voorzieningen
Elektra

Parkeergelegenheid

Soort parkeergelegenheid
Openbaar parkeren, op eigen terrein

Energieverbruik in Sint-oedenrode

Energielabel deze woning

Energielabel C

Publicatie energielabel: 05-09-2025

Stroomverbruik per jaar

3820 kWh

(Gemiddelde twee onder een kap in Sint-oedenrode)

Gasverbruik per jaar

1530 m³

(Gemiddelde twee onder een kap in Sint-oedenrode)

* Cijfers zijn afkomstig van het CBS en bedoeld als indicatie en kunnen verschillen voor deze woning

Indicatie hypotheeklasten

Eigen inleg:
Spaargeld / overwaarde

Rente:
Laagste 10-jaars rente

Laagste 10-jaars rente

2,85% - Centraal Beheer Groen... - NHG


3,08% - Centraal Beheer Groen... - 80%

Laagste 20-jaars rente

3,29% - Centraal Beheer Groen... - NHG


3,52% - Centraal Beheer Groen... - 80%

Laagste 30-jaars rente

3,41% - Centraal Beheer Groen... - NHG


3,74% - Centraal Beheer Groen... - 80%


Hypotheek:

Bruto maandlasten: € 0 p/m

Netto maandlasten: € 0 p/m

Hoe berekenen we dit?

Het rentepercentage is gebaseerd op de laagste 10 jaars vaste rente voor één hypotheekdeel. De vermelde rente (3.08% zonder NHG) is gecontroleerd op 28-01-2026. Deze berekening is gebaseerd op een annuïteitenhypotheek die volledig wordt afgelost, waarbij de maandlasten gedurende de gehele looptijd gelijk blijven. De werkelijke rente en netto maandlasten kunnen variëren, afhankelijk van uw persoonlijke situatie en de hypotheekverstrekker. Raadpleeg een financieel adviseur voor een nauwkeurige berekening en advies. Aan deze berekening kunnen geen rechten worden ontleend; het dient enkel als indicatie.

Documentatie

Kadastrale kaart

Leefomgeving

Plattegronden PDF

WOZ waarderapport

BAG uittreksel

Bouwtekening-carport

Bouwtekening-bg-1e

Bouwtekening-doorsnede

Bezoek onze website

Inloggen move.nl

Zonnegrenzen bekijken

Op de kaart

Inwoners in Sint-oedenrode

Cijfers voor postcodegebied 5491

Totaal aantal inwoners
10965 inwoners
Mannen
50%
Vrouwen
50%

Inwoners in Sint-oedenrode

Cijfers voor postcodegebied 5491

tot 15 jaar
17%
15 tot 25 jaar
12%
25 tot 35 jaar
22%
45 tot 65 jaar
30%
65 en ouder
19%

Huishoudens in Sint-oedenrode

Cijfers voor postcodegebied 5491

Eenpersoons zonder kinderen
25%
Meerpersoons zonder kinderen
34%
Huishoudens zonder kinderen
59%

Huishoudens in Sint-oedenrode

Cijfers voor postcodegebied 5491

Huishoudens met één kind
7%
Huishoudens met meerdere kinderen
34%
Huishoudens met kinderen
41%

Woningen in Sint-oedenrode

Cijfers voor postcodegebied 5491

Woningen voor 1945
8%
Woningen tussen 1945 en 1965
10%
Woningen tussen 1965 en 1975
21%
Woningen tussen 1975 en 1985
28%
Woningen tussen 1985 en 1995
13%

Woningen in Sint-oedenrode

Cijfers voor postcodegebied 5491

Woningen tussen 1995 en 2005
5%
Woningen tussen 2005 en 2015
10%
Woningen na 2015
4%
Huurwoningen
20%
Koopwoningen
80%

Overige in Sint-oedenrode

Cijfers voor postcodegebied 5491

Gemiddelde WOZ waarde
€ 338.000,-
Personen onder de 65 met uitkering
Niet beschikbaar

Overige in Sint-oedenrode

Cijfers voor postcodegebied 5491

Adressen per km²
741
Stedelijkheid (schaal 1 op 5)
40%
Postcode kaart 5491 Gemeente kaart meierijstad

Indien u vragen heeft of u wilt een bezichtiging inplannen, dan kunt u gebruik maken van het formulier hiernaast. Er zal daarna op korte termijn contact met u worden opgenomen.

Borchgrave 43

5492 AT, Sint Oedenrode

0413 472 118 info@vdlaar.nl www.vdlaar.nl

Makelaardij Van de Laar

Reeds bijna zes decennia is Makelaardij van de Laar een toonaangevende speler in de vastgoedsector van Sint-Oedenrode en omgeving. Doorheen de jaren hebben we een indrukwekkend aantal huizen succesvol verhandeld, waardoor talrijke klanten hun droomwoning hebben gevonden. Dankzij onze ervaring en expertise zijn we gespecialiseerd in het succesvol samenbrengen van kopers en verkopers.

Door de tijd heen hebben we een breed en effectief netwerk ontwikkeld. Dit stelt ons in staat om direct in te spelen op de behoeften van mensen die op zoek zijn naar een woning, of die hun huis willen verkopen. In de huidige dynamische woningmarkt, waarin huizen snel van eigenaar wisselen, kunnen we zo snel mogelijk de ideale match vinden. Dit is zeker in jouw voordeel.

Als lid van de VBO, de toonaangevende branchevereniging voor professionele en betrouwbare makelaars en taxateurs, staat Makelaardij van de Laar garant voor kwaliteit en betrouwbaarheid. Deze vereniging zet zich niet alleen in voor de belangen van makelaars, maar ook voor die van jou als consument, om zo het beste uit de vastgoedsector te halen. En daar pluk jij de vruchten van!

Makelaardij Van de Laar
Reviews Makelaardij van de Laar

Zwembadweg 8, Sint-oedenrode

€ 725.000 k.k. - Verkocht

Helaas, deze woning is verkocht!

Net te laat, deze woning is al verkocht. Laat een zoekopdracht bij ons achter zodat wij u direct kunnen helpen wanneer er nieuw aanbod beschikbaar komt.